服务热线
15951931910


·项目名称: 蓝洋林顿酒店
·ADD: 鄂尔多斯市
·建筑面积: 9600平方米
·完成时间:2026
·设计范围: 建筑设计、室内设计
·设计单位: 江蘇咏辰設計事務所

蓝洋林顿集团成立于2008年,全国首批五星级婚礼酒店之一
鄂尔多斯市规模最大的酒店管理公司
2018年当选为鄂尔多斯市餐饮与饭店业协议会长单位
The group was established in 2008 and is one of the first five-star wedding hotels in China
The largest hotel management company in Ordos City
In 2018, it was elected as the leading unit of the Ordos Catering and Hotel Industry Association

项目概况
PROJECT OVERVIEW
蓝洋林顿酒店集团成立于2008年,是一家集酒店、餐饮、会议和娱乐于一体的综合性企业集团,在内蒙古、江苏、湖北等地拥有多家分店。作为全国首批五星级婚礼酒店之一,它凭借多个可容纳近千人的无柱主题宴会厅、沉浸式场景设计以及集婚策、婚纱、餐饮住宿于一体的全链条服务,构建了核心竞争力;其背后由独创的6S+管理体系、绿色饭店认证及规模化厨师团队提供坚实运营保障,成为高端婚庆市场与城市商务接待的重要标杆。
Lanyanglington Hotel Group was established in 2008 and is a comprehensive enterprise group that integrates hotels, catering, conferences, and entertainment. It has multiple branches in Inner Mongolia, Jiangsu, Hubei, and other places. As one of the first five-star wedding hotels in China, it has built its core competitiveness with multiple pillar free themed banquet halls that can accommodate nearly a thousand people, immersive scene design, green hotel certification, and a large-scale chef team provide solid operational support, making it an important benchmark for high-end wedding markets and urban business receptions.

建筑外立面
FLOOR PLAN
江蘇咏辰設計事務所以现代手法诠释经典仪式感,巧妙融合了建筑的恢宏气势与婚礼的浪漫意境。拱形玻璃门廊以通透轻盈的形态形成视觉中心,既是对古典仪式的致敬,又充满现代张力。米白色石材立面奠定纯净高雅的基调,镶嵌其间的金色竖向线条与深色窗框构成精致对比,于简约中勾勒出轻奢细节。夜间,精心布置的灯光从建筑肌理中透射而出,营造出尊贵且极具辨识度的迎宾形象,使酒店在都市背景中凸显为一座专属于重要时刻的尊贵殿堂。
Luxury Wedding Art Center
The Luxury Wedding Art Center, located in Yungang District, Datong, Shanxi, is a newly constructed comprehensive banquet landmark. Based on modern light luxury European style, create a luxurious and atmospheric atmosphere. In terms of design, the center is composed of gold, white, and dark tonesan-shaped ARTDECO decorative elements. Geometric lines coexist with classical elegance, endowing the space with a unique artistic soul. It integrates professional wedding cels, and art exhibitions, committed to bringing a one-stop luxury experience that combines international fashion and regional cultural heritage to Datong.


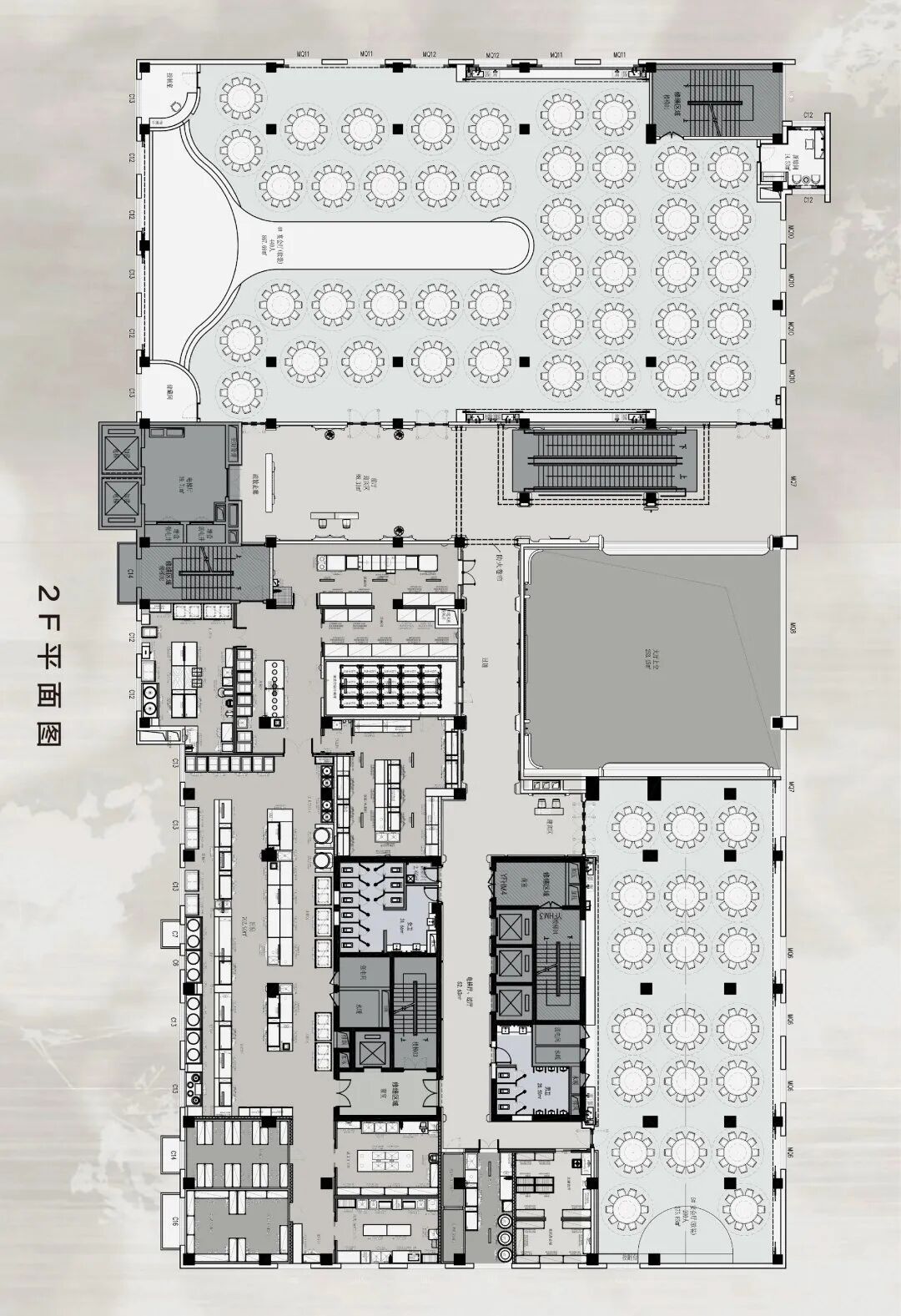
平面布局图
floor plan
江蘇咏辰設計事務提炼出体块关系和清晰的线性语言为核心。挑高空间与对称布局奠定大气基调;大面竖条纹格栅墙与几何拼花地面强化纵向延伸感与现代秩序。材质上,温润青玉石材与冷峻金属形成质感对话,香槟金细节点缀于栏杆、收边等处,于简约中勾勒轻奢气质。整体摒弃繁复装饰,依靠比例、光影与材质对比,营造出兼具高端商务质感与现代意式艺术格调的静谧空间氛围。
The graphic layout constructed by Jiangsu Yongchen Design Firm for this project revolves closely around the core principle of "experience first, function first". The design, through a scientific flow system and rigorous spatial sequence organization, strongly supports the brand positioning of the high-end wedding art hall of the project. Specifically, the clear vertical active line efficiently guides the flow of people, ensuring a smooth and prestigious journey from the entrance lobby to the core banquet hall; At the same time, the layout cleverly balances the relationship between public areas and private spaces, front guest experience, and logistical support functions, ultimately achieving a perfect balance of multidimensional needs.



室内公区设计
interior design
江蘇咏辰設計事務提炼出体块关系和清晰的线性语言为核心。挑高空间与对称布局奠定大气基调;大面竖条纹格栅墙与几何拼花地面强化纵向延伸感与现代秩序。材质上,温润青玉石材与冷峻金属形成质感对话,香槟金细节点缀于栏杆、收边等处,于简约中勾勒意式轻奢气质。整体摒弃繁复装饰,依靠比例、光影与材质对比,营造出兼具高端商务质感与现代艺术格调的静谧空间氛围。
Jiangsu Yongchen Design Office extracts block relationships and clear linear language as the core. Tall space and symmetrical layout establish an atmospheric tone; The large vertical striped grid wall and geometric mosaic floor enhance the sense of longitudinal extension and modern order. In terms of material, warm green jade stone and cold metal form a textured dialogue, while champagne gold details are embellished on railings, edges, and other areas, outlining a light luxury temperament in simplicity. Abandoning complex decorations as a whole, relying on proportion, light and shadow, and material contrast to create a serene spatial atmosphere that combines high-end business texture and modern artistic style.



江蘇咏辰設計事務所以现代轻奢为基调,通过严谨的对称布局与沉静的深绿色调,营造出私密而优雅的咨询氛围。艺术墙面、丝绒座椅与精致绿植在柔和光影下交织,兼顾开放性的同时带有私密性,于简约秩序中透露出低调的奢华感与艺术格调,完美服务于专属的婚礼洽谈时刻。
Jiangsu Yongchen Design Firm is based on modern luxury French style, creating a private and elegant consulting atmosphere through rigorous symmetrical layout and calm deep green tones. The artistic walls, velvet chairs, and exquisite green plants interweave under soft light and shadow, balancing openness with privacy, revealing a low-key sense of luxury and artistic style in a simple order, perfectly serving the exclusive wedding negotiation moment.



电梯厅设计延续了统一的整体风格,作为宴会空间的重要过渡节点,营造出精致而富有仪式感的抵达氛围。江蘇咏辰設計事務所以纵向排列的电梯门形成严谨的对称序列,搭配通高的天然大理石墙面与地面,其浑厚而自然的纹理奠定了沉稳高雅的基调。金属边框与装饰线条以精准的比例勾勒出轮廓,于细节处流露奢华。渲染出一个优雅、温馨且不失现代感的通行空间,完美衔接了公共区域与私密宴会体验。
The elevator hall design continues the unified overall style, serving as an important transitional node in the banquet space, creating a refined and ceremonial atmosphere of arrival. Jiangsu Yongchen Design Firm forms a rigorous symmetrical sequence with vertically arranged elevator doors, paired with natural marble walls and floors that are all high. Its rich and natural texture establishes a calm and elegant tone. The metal frame and decorative lines outline the contours with precise proportions, revealing luxury in the details. Create an elegant, warm, and modern space that seamlessly connects public areas with private banquet experiences.


序厅作为宴会体验的优雅开端,以意式轻奢风格奠定了空间的整体基调。对称严谨的布局彰显仪式感,温暖的米咖色调墙面与深灰色地面形成舒缓而高级的对比。流畅的弧形吊顶嵌入柔和线性灯光,宛如一道光之穹廊,指引并迎接宾客。两侧艺术画作与壁灯点缀出人文气息,而通顶的柜门与镂空隔断在保障功能性的同时,保持了视觉的延续与通透。共同营造出一个精致、浪漫且充满艺术感的过渡空间,悄然开启一场难忘的宴会之旅。
As the elegant beginning of the banquet experience, this prologue hall establishes the overall tone of the space with a modern French light luxury style. The symmetrical and rigorous layout highlights a sense of ceremony, with warm beige toned walls and dark gray flooring creating a soothing and sophisticated contrast. The smooth curved ceiling is embd a humanistic atmosphere, while the open top cabinet doors and hollow partitions ensure functionality while maintaining visual continuity and transparency. The green plants and marble flower bowls embellish the exquisite space, injecting natural vitality and creating a delicate, romantic, and artistic transitional space, quietly embarking on an unforgettable banquet journey.


江蘇咏辰設計事務所通过强化空间的纵向线条与透视感,搭配两侧整齐阵列的绿植与线性壁灯,创造出强烈的序列感和仪式感。天花板的简洁线条与均匀布置的筒灯提供了柔和的基础照明,进一步突出了空间的整洁与深度。而一抹绿意则为空间注入了自然生机与柔和气息。整体摒弃一切繁复装饰,依靠比例、光影和点线面构成,营造出一个令人心境平和、专注于空间体验的静谧序厅通道。
Jiangsu Yongchen Design Firm enhances the vertical lines and perspective of the space, paired with neatly arranged green plants and linear wall lights on both sides, creating a strong sense of sequence and ceremony. The simple lines of the ceiling and the evenly arranged tube lights provide soft basic lighting, further highlighting the cleanliness and depth of the space. And a touch of greenery injects natural vitality and gentle atmosphere into the space. Abandoning all complicated decorations as a whole, relying on proportion, light and shadow, and dotted lines and surfaces to create a peaceful and focused space experience in the lobby passage.



[ 原创声明:本文为结婚产业观察转载;来源:江苏咏辰空间设计;转载请注明作者姓名和来源。文章内容系作者个人观点,不代表结婚产业观察对观点赞同或支持。 ]

关注微信公众号:结婚产业观察(wionews),每日推送,干货互动精彩多